Apartment for sale, 4+kk - 3 bedrooms, 69m2

Tupolevova, Praha 9 - Letňany

7 900 000 CZK, with agency fees, with legal services Get a low-rate mortgage
Make Enquiry
ID: SaleTupolevova472

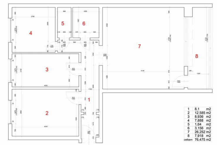
We offer for sale a beautiful and very pleasant apartment 4+kk, 77m2, including a glazed loggia of 8m2 and a storage room of 1m2 on the 1st floor of a panel house in the desired area of Prague 9 - Letňany.

The apartment consists of a living room with a kitchen and access to a loggia, a bedroom, a children's room, a smaller bedroom for guests (can be used as an office or as desired), a bathroom with a bathtub, a separate toilet and a corridor from which you can access all of the above. premises.

Close to all amenities. Located in close proximity to OC Letňany (shops, restaurants, banks, Tesco, cinema, etc.). There is a post office in the vicinity. Nearby there are supermarkets Albert and Penny Market, several playgrounds, a tennis hall and a water park. For walking or jogging, there is the Letňany forest park nearby. Excellent transport accessibility, 4 min. to metro C - Letňany.

Ready for sale

Price: 7 900 000 CZK

Call, write: Viber, WhatsApp, Telegram
Please give the apartment ID number when calling.
Offer IDID:SaleTupolevova472
Last updated01.12.2025
Price7 900 000 CZK, with agency fees, with legal services
Price for discussionNo
Agency feeWith agency fees
Legal servicesWith legal services
House typeWith floors
ConditionVery good condition
Construction typeConcrete
OwnershipPersonal
FurnishedYes
Floor2
Number of floors9
Usable area69m2
Floor area69m2
Land area77m2
Cellar area1m2
GarageNo
ParkingNo
CellarYes
BalconyNo
TerraceNo
LoggiaYes
ElevatorYes
PoolNo
Electricity230V
TelecomOther, Cable TV, Internet
Barrier-free accessNo
Building surroundingsResidential
TransportBus, Public transport
Road typeAsphalt
Send me an offer for a low-rate mortgage
Bc. Igor  Chotinskij

Bc. Igor Chotinskij

Reveal phone number