Apartment for sale, 3+kk - 2 bedrooms, 104m2

Dělnická, Praha 7 - Holešovice

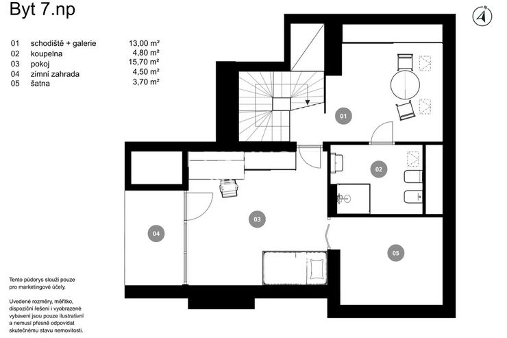
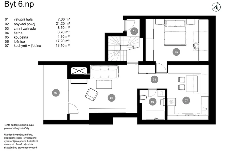
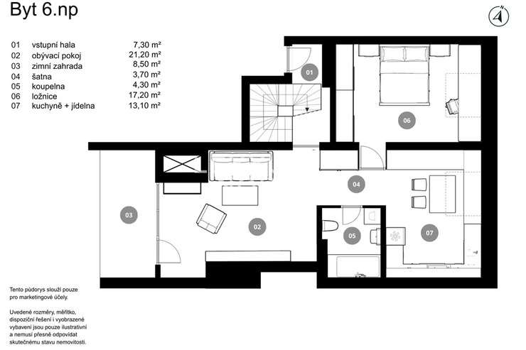
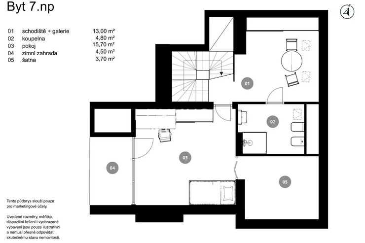
This airy 2-bedroom duplex apartment with a total area of 104 sqm. Terrace and loggia are located in one of the most sought-after parts of Prague 7, on Delnicka Street in Holesovice. It is located on the 6th and 7th floors of a historic building with an elevator and carefully renovated common areas. The lower level of the apartment consists of an open living space with a kitchen and dining area, followed by a separate living room with access to a loggia facing a quiet courtyard. This level also includes a master bedroom, bathroom, and entrance hall. One floor above is a second bedroom with its own loggia oriented to the west with views of the surrounding buildings, along with a bathroom with a bathtub. Thanks to this well-thought-out layout, the apartment offers an above-standard level of privacy and a clear separation between the day and night areas. This apartment is oriented to the west and east. The apartment underwent a complete renovation in 2014 and is in very good condition. The interior style respects the character of the building and combines modern elements with elegant details.Kitchen unit, air conditioning, Vaillant gas boiler for water heating and heating.Holesovice is one of Prague's most dynamically developing districts. It boasts a diverse network of restaurants, cafés, and cultural institutions, led by the DOX and Veletržní palác galleries, as well as all civic amenities. The popular Stromovka and Letenske sady parks are within walking distance. The location also offers excellent transport links — tram lines and the metro (C — Vltavská) provide quick connections to the city center.
Last updated10.02.2026
Price17 400 000 CZK
ConditionVery good condition
Construction typeBrick
OwnershipPersonal
FurnishedPartially
Floor5
Number of floors1
Usable area104m2
Move-in date10.02.2026
GarageNo
ParkingNo
CellarYes
BalconyYes
TerraceYes
LoggiaNo
ElevatorYes
Energy RatingG - Exceptionally uneconomical
Send me an offer for a low-rate mortgage
Adéla Bukovská

Adéla Bukovská

Reveal phone number

LEXXUS NORTON

Na Poříčí 2090/2, Praha 1, 11000

view all agency properties