Apartment for sale, 3+kk - 2 bedrooms, 72m2

Toufarova, Praha 5 - Stodůlky

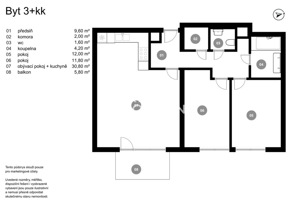
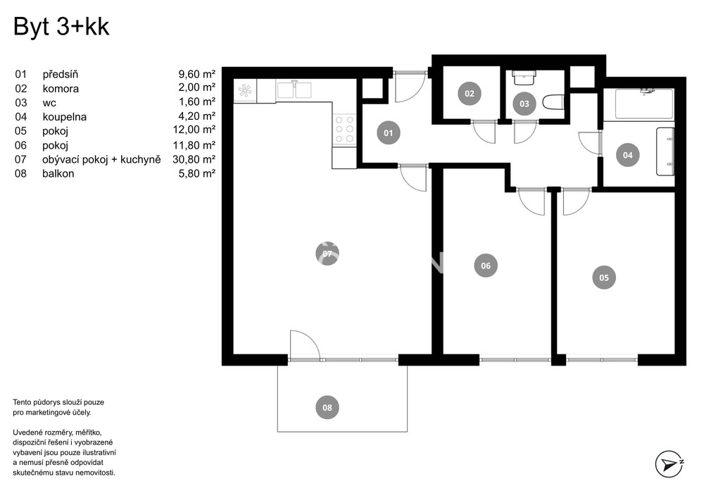
We offer for sale a spacious 2-bedroom apartment with a total floor area of 78.1 sqm located on the 2nd floor of a modern new building. The apartment consists of two separate bedrooms, a spacious living room connected to a kitchenette, a bathroom and a separate toilet. The apartment also includes a balcony (5.8 sqm), ideal for relaxation and sitting. The apartment also has a practical cellar and a reserved parking space. The building is also equipped with an elevator.The apartment is equipped with a custom-made kitchen with high-quality Bosch appliances. The living room and bedroom are fully furnished. The overall furnishings of the apartment are modern in style, with an emphasis on functionality and comfort.The apartment is located on Toufarova Street in Prague 5. The location offers excellent civic amenities and great transport connections. You will find all the necessary infrastructure in the vicinity – shops, schools, kindergartens, restaurants, and medical facilities. Bus and metro stops are within walking distance, providing reliable transport to the center of Prague. The surrounding area also offers plenty of green spaces and parks for relaxation and sports activities. An ideal place for families with children and young couples looking for quiet living with excellent access to the city center.
Last updated31.03.2026
Price12 760 096 CZK
ConditionNew construction
Construction typeMixed
OwnershipPersonal
FurnishedPartially
Floor2
Number of floors1
Usable area72m2
Move-in date01.05.2026
GarageNo
ParkingYes
CellarYes
BalconyYes
TerraceNo
LoggiaNo
ElevatorYes
Energy RatingB - Very economical
Send me an offer for a low-rate mortgage
Adéla Bukovská

Adéla Bukovská

Reveal phone number

LEXXUS NORTON

Na Poříčí 2090/2, Praha 1, 11000

view all agency properties