Apartment for sale, 2+kk - 1 bedroom, 43m2

Plynárenská, Brno - Zábrdovice

This bright apartment with a balcony is situated in the new Brno Jedna project, which offers modern urban housing with complete facilities and excellent access to the city center.

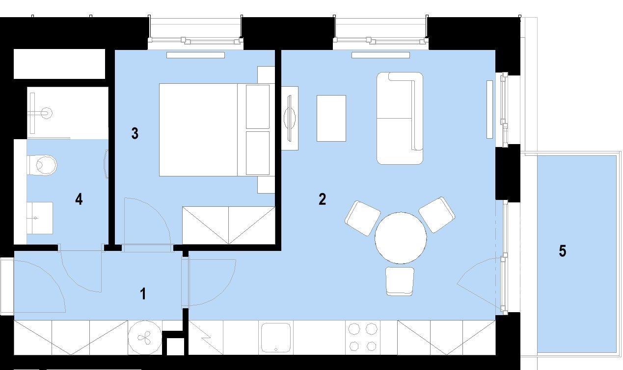
Unit no. 2201 with a one-bedroom layout and a total area of 49 m² on the 2 floor will offer you a harmonious space for living, whether you are looking for your own apartment or are a couple starting a joint chapter. The airy living room with a kitchenette freely flows into the bedroom, which is complemented by an elegant bathroom with a shower and toilet. Thanks to its orientation to the N, E, the apartment enjoys an ample amount of natural light. The unit includes a balcony, perfect for enjoying your morning cup of coffee in the fresh air. A cellar and a parking space must be purchased for each unit. The apartment will be ready to move into immediately with finished floors, a fitted bathroom, and a space for a kitchen unit. Standards include high quality materials, triple-glazed windows, and in selected units, preparation for outdoor shading.

Brno Jedna, or Brno One, is more than just a residential building, it is a place where you will live well. The building boasts a roof terrace with a grill, a workout zone, a bike room, a laundry room, and a stroller room - all of which will offer you the comfort of urban life. A new district with a park, bike paths, and services is developing nearby. The city center is within reach in just 5 minutes by public transport or by car.

The units are expected to be completed and handed over at the end of 2027.
Offer ID1BJ2201
Last updated04.12.2025
Price6 283 000 CZK
Price for discussionNo
ConditionNew construction
Construction typeMixed
OwnershipPersonal
Floor3
Number of floors9
Usable area43m2
Floor area49m2
Land area49m2
Balcony area6m2
Non-residential premises area6m2
GarageYes
ParkingNo
CellarNo
BalconyYes
TerraceNo
LoggiaNo
ElevatorYes
Garrets (attic spaces)No
TransportBus, Public transport, Road, Highway, Train
Low-energyNo
Energy RatingA - Exceptionally economical
DecreeNo. 78/2013 Coll.
Send me an offer for a low-rate mortgage
Zuzana Raganová

Zuzana Raganová

Reveal phone number

PSN, s. r. o.

Seifertova 823/9, Praha 3, 13000

view all agency properties