Apartment for sale, 5 bedrooms +, 386m2

Rooseveltova, Praha 6 - Bubeneč

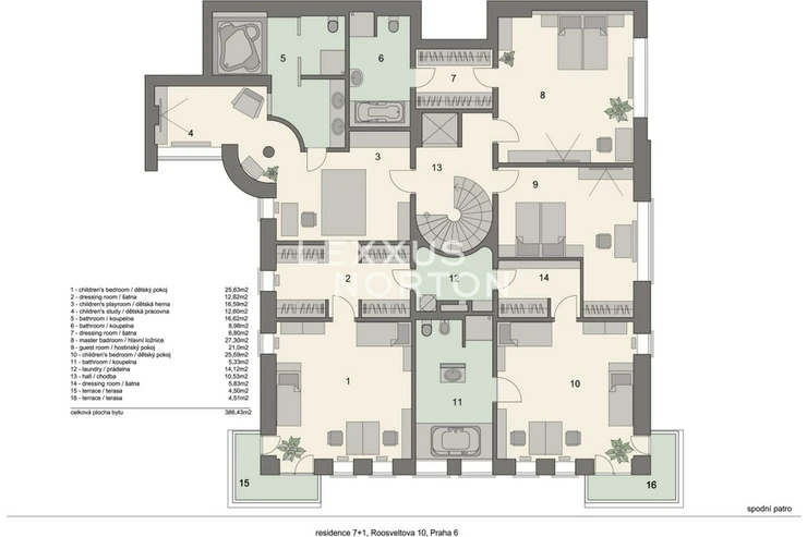
We offer for sale an exceptional six-bedroom duplex apartment, which spans the second and third floors of a modern residence with an elevator, swimming pool, sauna, fitness center, and a well-maintained ornamental garden. The size of the apartment is comparable to the built-up area of the house, offering exceptional facilities. The residence is located in the prestigious area of Prague 6 – Bubenec, in a quiet and sought-after diplomatic district, just a few steps from Stromovka Park.The entrance floor of the apartment features a spacious social area with a living room of almost 80 sqm, facing east with a regular rectangular layout, giving it a representative character. There is also a separate kitchen with a pantry, a guest room, an office, and a separate toilet. Comfort is enhanced by a large number of storage spaces in the form of utility rooms.The lower floor is designed as a quiet and private zone. It includes five bedrooms, two of which have direct access to their own terrace. Three bedrooms have their own bathrooms, with the bedrooms and bathrooms connected via dressing rooms. This layout ensures maximum comfort and privacy, and the practical facilities of the lower floor also include a utility room for household tasks.The apartment has three balconies, providing pleasant outdoor seating. Included in the purchase price are three large garage spaces and a cellar, with all areas conveniently accessible by elevator.The sought-after Prague district, with its unique atmosphere, is located near foreign embassies. The area offers excellent transport accessibility. Just a few minutes’ walk to metro Dejvicka and a tram stop with quick connections to the city center. Nearby are quality schools and kindergartens, including international schools such as Riverside School Prague and ISP. For leisure activities, the area offers a sports center, tennis courts, and a workout park. Within reach are parks such as Stromovka, Willy Brandt, and Lázaro Cárdenas, or you can walk along the Vltava River. Thanks to good road connections, a convenient route to Vaclav Havel Airport is also ensured.
Last updated05.02.2026
Price66 000 000 CZK
ConditionVery good condition
Construction typeMixed
OwnershipPersonal
FurnishedPartially
Floor2
Number of floors1
Usable area386m2
Move-in date05.02.2026
GarageNo
ParkingYes
CellarYes
BalconyYes
TerraceNo
LoggiaNo
ElevatorYes
Energy RatingD - Less economical
Send me an offer for a low-rate mortgage
Adéla Bukovská

Adéla Bukovská

Reveal phone number

LEXXUS NORTON

Na Poříčí 2090/2, Praha 1, 11000

view all agency properties