Apartment for sale, 3+kk - 2 bedrooms, 93m2

Šrámkové, Praha 3 - Žižkov

18 500 000 CZK, with agency fees Get a low-rate mortgage
Make Enquiry
Registration number / Contract ID: VS253

We offer for sale a spacious 3+kkk apartment in a newly built residential complex. This luxurious apartment is located in a unique project that transforms a part of Žižkov into a modern urban neighborhood with extensive green areas and full infrastructure. The apartment offers comfortable living with excellent transportation accessibility and a full range of urban amenities nearby.

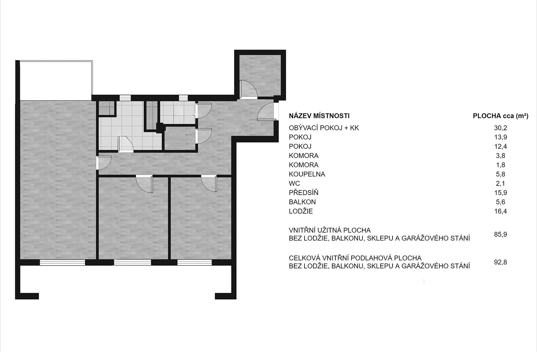
The total area of the apartment, including loggia and balcony, excluding basement and parking garage, is 114.8 sq. m. The interior of the apartment is dominated by a spacious living room with kitchen and a large south-facing loggia, which extends the living space and is ideal for relaxing. The living room also provides access to a north-facing balcony overlooking the residence's courtyard, offering an alternative outdoor space. Two separate bedrooms provide ample privacy for all members of the family. The bathroom with vanity and separate toilet are designed with a focus on functionality and aesthetics, and both rooms are fitted with windows. Two pantries offer ample storage space. The illustrative photographs used in the advertisements are as close to reality as possible.

Part of the sale of the apartment also includes a dedicated storage space (sklep) and a parking space in the underground garage of the house with preparation for charging electric cars.

The apartment is equipped with excellent features for maximum living comfort. Controlled ventilation system with heat recovery ensures a healthy indoor atmosphere and energy saving. Air conditioning provides a pleasant atmosphere on hot summer days. A sophisticated underfloor heating system ensures optimal thermal comfort in every corner of the apartment. Blinds on the windows and double-glazed windows guarantee optimal heat and sound insulation. Frost-resistant tiles are laid on the loggia and balcony.

The apartment is located in a residence where special attention is paid to ecology and comfort. Green roofs, rainwater harvesting tanks and park landscaping with water elements contribute to a pleasant microclimate. The project also includes the construction of a new kindergarten and the creation of a large park, which will be an ideal place for recreation and outdoor activities.

The location offers excellent transport accessibility - just 5 minutes walk to the Želivského metro and the planned streetcar line in the heart of the district. All necessary civic amenities are nearby, including schools, medical facilities, stores and restaurants. Due to its location in the heart of Prague, excellent amenities and thoughtful urban design of the entire neighborhood, this apartment is an ideal choice for discerning people interested in a quality property for living.

The energy consumption class PENB B is very economical.
Please contact the estate agent for further information and to arrange a viewing.
Offer IDVS253
Last updated24.12.2025
Price18 500 000 CZK, with agency fees
Price for discussionNo
Agency feeWith agency fees
ConditionNew construction
Construction typeFrame
OwnershipPersonal
Floor4
Number of floors6
Usable area93m2
GarageYes
ParkingYes
CellarYes
BalconyNo
TerraceNo
LoggiaYes
ElevatorYes
PoolNo
Electricity230V
TelecomInternet, Telephone
Waste managementPublic sewage
Year of construction2024
Garrets (attic spaces)No
TransportBus, Public transport, Road, Train
Road typeAsphalt
Low-energyYes
Energy RatingB - Very economical
DecreeNo. 78/2013 Coll.
Send me an offer for a low-rate mortgage
Makers Reality

Makers Reality

Reveal phone number

Makers Reality

Vinohradská 2133/138, Praha 3, 13000

view all agency properties