Apartment for sale, 2+kk - 1 bedroom, 123m2

Staré Město - Stříbrnice

7 058 678 CZK, with agency fees, with legal services Get a low-rate mortgage
Make Enquiry
Are you looking for an apartment in beautiful nature, ecological and energy-efficient and at the same time of a very high standard? Then we would like to exclusively offer you the residential development (now until the end of January with a 10% discount and with 1 extra parking space for free!) Resort Stříbrnice, located right next to the Kraličák mountain area, from the top of which you can ski down directly next to your apartment. There will be 29 units in two buildings (building D and building ABC), you can already move spring this year!

A separate heated building will be available for all owners, inside you will be able to dry your shoes and ski boots in the winter season. In the cycling season, the building will be used for bicycles with a capacity for 40 bikes. The space will be monitored by a camera system. The apartments come with a cellar and a parking spaces already incl.in the price.

The location is suitable for both winter and summer season, there are many options for enjoying leisure activities in the area. The Kraličák area was created by combining the ski resorts in Stříbrnice and Hynčice pod Sušinou. It is for those who want to enjoy our slopes and walks with panoramic views of the surroundings. In summer, there is a trail & enduro park, many trails, the Úžas pond, where you can rent, for example, the paddleboard, etc. You can find all the information on particular website of the resort, where you can read about the activities and services that this location offers.

The developer who is providing the construction did it like for himself to feel good in the project, so he chosen materials and technologies that are timeless and of high quality - heat is provided by a heat pump (geothermal ground heating), some units are equipped with recuperation, aluminium windows with insulating triple glazing comes as a standard, vinyl flooring, designed bathrooms, ABB controls, etc., we will be happy to send you complete project standards. You can find more information on the project website.

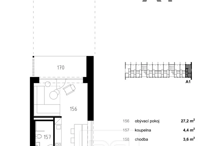
This particular unit is located on the 1st floor in part A, marked A.1, has a total area of 57.2 sqm with a terrace, from which there is an entrance to the front garden with an area of 65.9 sqm. The price includes a cellar and one outdoor parking space. The price exkl. VAT (21%).

It is also an interesting investment opportunity for the short-term rental, which our company will be happy to provide for you.

If you don’t want to waste your time, it will be a pleasure to send you a link with a virtual tour to have a complete idea of the property offered (360° tour with video orientation as you wish).
Offer IDN07825
Last updated23.11.2025
Price7 058 678 CZK, with agency fees, with legal services
Price for discussionNo
Agency feeWith agency fees
Legal servicesWith legal services
ConditionNew construction
Construction typeBrick
OwnershipPersonal
FurnishedNo
Floor1
Number of floors2
Usable area123m2
Construction end date01.06.2025
Year of acceptance2025
Move-in date01.06.2025
GarageNo
ParkingYes
CellarYes
BalconyNo
TerraceYes
LoggiaNo
ElevatorNo
PoolNo
HeatingCentral electric
Year of construction2025
Number of parking spaces1
Garrets (attic spaces)No
Low-energyNo
Energy RatingC - Economical
DecreeNo. 78/2013 Coll.
Energy Performance Certificatedownload
Send me an offer for a low-rate mortgage
Bc. Robert Poppl

Bc. Robert Poppl

Reveal phone number

Bohemian Estates

V háji 1092/15, Praha 7, 17000

view all agency properties