Apartment for sale, 3+kk - 2 bedrooms, 77m2

Černý Důl

We would like to offer you the last 6 apartments (now until the end of January with a 10% discount and with 1 extra parking space for free!) in the development project Resort Černý Důl, which was selected as the winner of the "Architects Award in the Hradec Králové region". It is characterized by great practicality, original layouts and beautiful views of the local surroundings. The project is located in a quiet location at the end of the village, 1 minute by car from the local ski area, or a few minutes from Janské Lázně / SkiResort Černá Hora. Within few minutes driving distance with the possibility of ski bus transport are also the Skiresorts Černá Hora, Pec pod Sněžkou, Pomezní boudy and Velká Úpa (Portášovy Boudy), all with a joint by single ticket. The location is also convenient for lovers of hiking and cycling. Natural forest trails and cycle paths start not far from the project. In addition to the exit to the ridges, we can enjoy less difficult routes of the Krkonoše Mountains.

The standard includes PVC flooring (Breno), designed bathrooms by Elements studio, ABB switchers, fancy Prüm doors, etc. We will be happy to send you complete project standards.

Outdoor/indoor parking spaces, cellars, or a shared bicycle/ski room are available. If interested, additional parking spaces can be purchased.

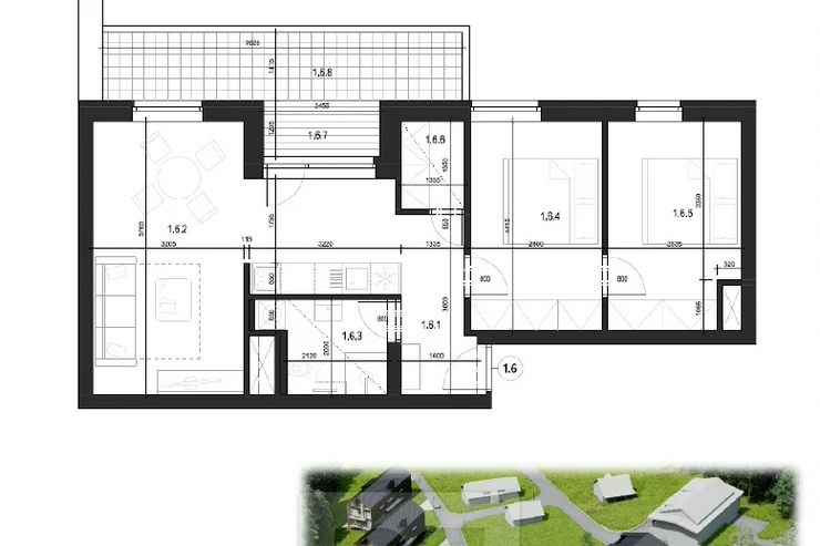
This particular 2BED unit is located on ground floor in section B1 marked 1.6, has a total area of 63,5 sqm with a front garden of 13.70 sqm. The price includes a cellar and two outdoor parking space. The price exkl. VAT (21%).

This is also an interesting investment opportunity, as units are great for the rent, especially for the short term, which our company will be happy to provide, we rent similar apartments in the area and its surroundings.

If you don’t want to waste your time, it will be a pleasure to send you a link with a virtual tour to have a complete idea of the property offered (360° tour with video orientation as you wish).
Offer IDN07810
Last updated23.11.2025
Price6 389 256 CZK
Price for discussionNo
ConditionNew construction
Construction typeBrick
OwnershipPersonal
FurnishedNo
Floor1
Number of floors3
Underground floors1
Usable area77m2
Terrace area14m2
Year of acceptance2024
GarageNo
ParkingYes
CellarYes
BalconyNo
TerraceYes
LoggiaNo
ElevatorYes
PoolNo
Barrier-free accessYes
Year of construction2024
Number of parking spaces2
Garrets (attic spaces)No
Low-energyNo
Energy RatingB - Very economical
DecreeNo. 78/2013 Coll.
Energy Performance Certificatedownload
Send me an offer for a low-rate mortgage
Bc. Robert Poppl

Bc. Robert Poppl

Reveal phone number

Bohemian Estates

V háji 1092/15, Praha 7, 17000

view all agency properties