Apartment for sale, 2+kk - 1 bedroom, 36m2

Křižíkova, Praha 8 - Karlín

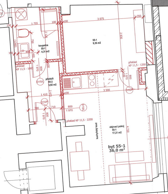
We offer for sale a beautiful, newly renovated apartment of 2 + kk with a floor area of 36 m². The apartment is located on the 2nd floor of an apartment building at a prestigious address in Křižíkova Street, just 200 meters from the Křižíkova metro station, very close to Karlín Square.

Property description:
- Entrance hall: practical space for storage.
- Kitchen with living room: new kitchen, which will be fully equipped with modern appliances, connected to the cozy living area
- Bedroom: a quiet and separate room for your privacy
- Bathroom and toilet: stylishly renovated for comfort and convenience

Benefits of the apartment:
- Completed renovation: renovation works will be completed in November 2024, so everything will be brand new.
- Orientation to the courtyard: The apartment is oriented to a quiet courtyard, providing maximum privacy and silence.
- Location: It is one of the most desirable districts in Prague - there is a wide range of restaurants, cafes, shops and green spaces.
- The Křižíkova metro station is literally around the corner, just a 1-minute walk away.
- In the yard behind the house it is possible to rent an underground parking space for a long time.

Investment opportunity:
Thanks to its location and modern design, the apartment is ideal not only for living on your own, but also as an investment with the possibility of profitable rental.

Possibility of financing in instalments: attractive conditions for purchase
- Take advantage of the opportunity to purchase this apartment also by means of advantageous instalment financing with an interest rate of only 4.89% p.a.
- The first instalment is 20% of the purchase price.
- Subsequently, the financing can be spread over up to 35 years, with a comfortable monthly payment for you.
- This instalment product is also available to foreign clients, regardless of nationality. Exceptionally favourable terms and conditions allow for hassle-free approval, without the need for demanding background checks or additional conditions.

Do not hesitate to contact us to arrange a viewing of this attractive apartment in the heart of the action in Karlín!
Offer IDN360
Last updated03.12.2024
Price6 599 000 CZK
Price for discussionNo
House typeWith floors
ConditionRenovated
Construction typeBrick
OwnershipPersonal
FurnishedPartially
Floor2
Number of floors6
Usable area36m2
Floor area36m2
Move-in date01.12.2024
GarageNo
ParkingNo
CellarNo
BalconyNo
TerraceNo
LoggiaNo
ElevatorYes
Electricity230V
TransportBus, Public transport, Road, Train
Energy RatingB - Very economical
Send me an offer for a low-rate mortgage
Call Centrum CAPITAL Trust, a.s .

Call Centrum CAPITAL Trust, a.s .

Reveal phone number

Capital Trust a.s.

Křižíkova 679/65a, Praha 8, 18600

view all agency properties