Family house for rent, 417m2, 1263m2 of land

Ke hrádku, Praha 4 - Kunratice

88 000 CZK / month, excluding agency fees
Make Enquiry
We offer for rent an exclusive family house in Prague Kunratice in a place surrounded by greenery, near the forest park Kunratický les and less than two kilometers by car from the shopping center Westfield Chodov, near Chodov metro station and office complex The Park. All civic amenities, including medical care and education, are very easily accessible in the locality. Prague British International School, for example, is easily accessible.
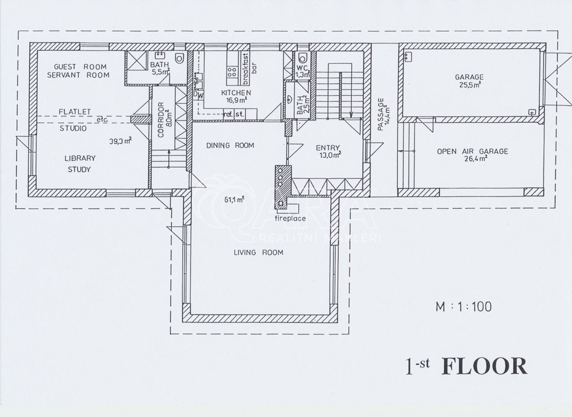
The house itself has a built-up area of 264 sqm, a floor area of 417 sqm, two garage spaces and a flat garden with a size of 1000 sqm. The internal layout of the house has 5 bedrooms. Large living room has fireplace and high ceiling, there are four bathrooms, making it a place suitable for the comfortable life of a large family. The advertised rent price does not include energy and water consumption in the house and household waste collection which the tenant pays directly to the supplier. We will be happy to organize viewing.
Offer ID6122/2918
Last updated30.11.2025
Price88 000 CZK / month, excluding agency fees
Price for discussionNo
Agency feeExcluding agency fees
Size5 rooms and more
House typeWith floors
ConditionVery good condition
Construction typeBrick
FurnishedNo
Number of floors2
Usable area417m2
Land area1263m2
Garden area999m2
Move-in date15.12.2025
GarageYes
ParkingYes
CellarNo
BalconyNo
TerraceNo
LoggiaNo
PoolNo
Building typeDetached
Number of parking spaces1
Number of garages1
Garrets (attic spaces)No
Low-energyNo
Energy RatingB - Very economical
DecreeNo. 78/2013 Coll.
Send me an offer for a low-rate mortgage
Jakub Horváth

Jakub Horváth

Reveal phone number