Villa for rent, 827m2, 8770m2 of land

Ke dvoru, Praha 6 - Vokovice

240 000 CZK / month
Make Enquiry
We offer for rent an extensive 8+2 villa in Prague 6. This is a unique, completely renovated property from 1902 located in the area of Vokovický Dvůr, whose history dates back to the 15th century and is today a cultural heritage site within a protected area. The villa, with one underground and three above-ground floors, features an indoor pool, sauna, beautiful mature garden in the style of an English park covering an area of 8,510 m2 with a fountain, garden gazebo, tennis court, and a terrace. The orientation of the living rooms is south, west, and north. The villa is situated on a quiet street close to the Šárka nature reserve, in one of the most beautiful parts of the capital city, on the edge of Dejvice in Vokovice at Prague 6.

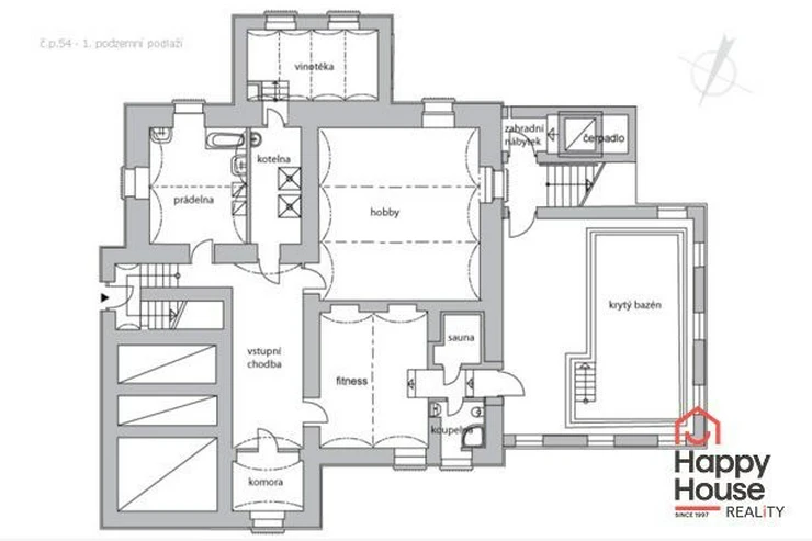
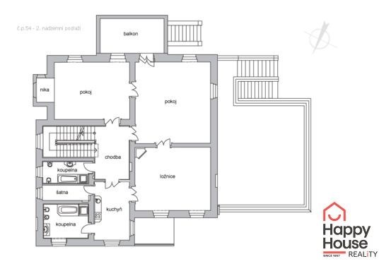
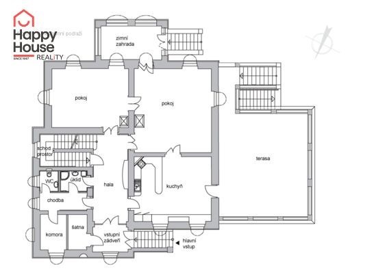
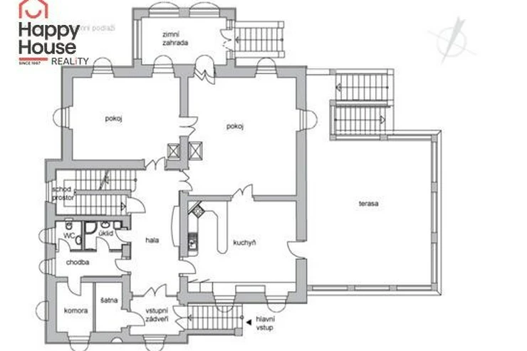
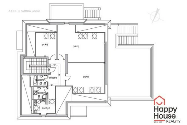
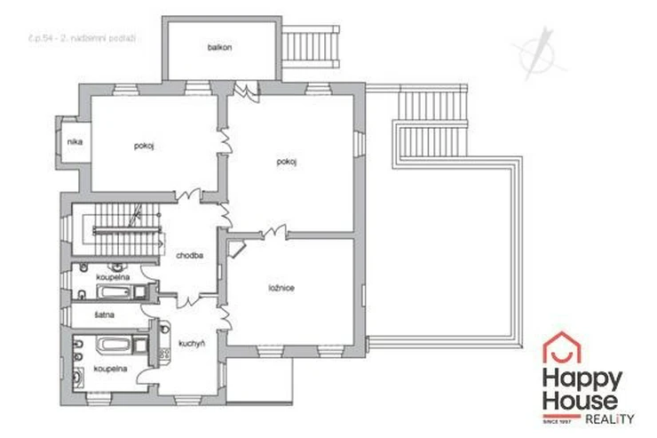
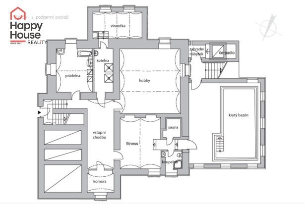
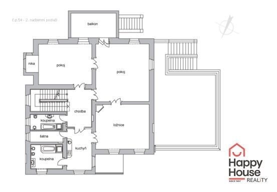
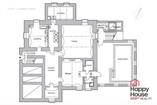
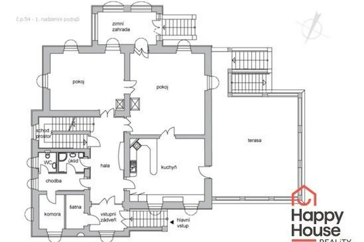
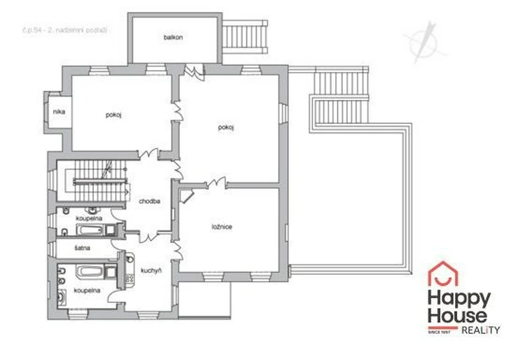
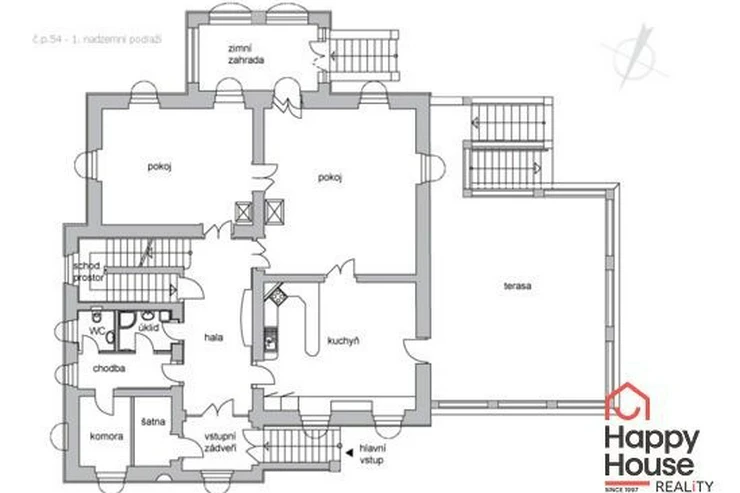
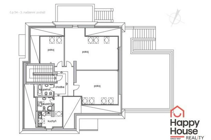
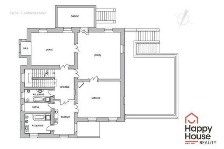
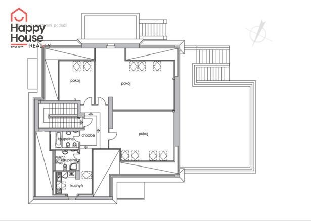
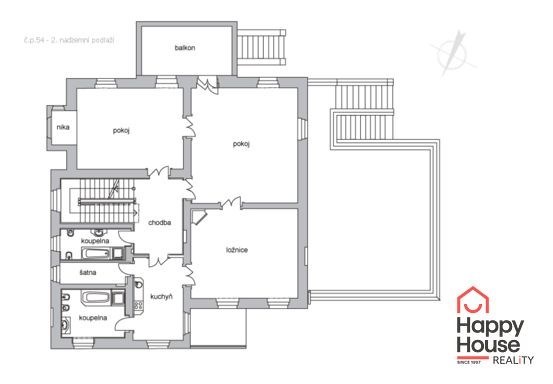
The villa is partially furnished and offers 7 bedrooms, 5 bathrooms, a living room, 3 kitchens, 2 dressing rooms, and technical rooms. On the ground floor, there is an entrance foyer, hall, living room, winter garden, bedroom, fully equipped kitchen with dining area and terrace, utility room, dressing room, bathroom (shower) and a separate toilet. The first floor offers three bedrooms, two bathrooms (bathtub, toilet, and bidet), a kitchen, dressing room, balcony, and a small winter garden. On the second attic floor, there are three bedrooms, a kitchenette, hall, and two bathrooms (one with a bathtub, toilet, and bidet, the second with a shower and toilet). In the basement, there's a pool, sauna, bathroom (shower and toilet), laundry room, technical facilities, gym/playroom, wine cellar, utility room, and access to the garden. Preserved original features and original wooden staircase, high ceilings, wood floors, inlaid parquet, tiles, stone, as well as wooden paneling and shutters, stucco, three tiled stoves, storage spaces, gas boilers, video intercom, alarm, satellite reception. The house is partially furnished and additional furniture can be rented. Parking for two cars in the garage and four in front of the house. The property is protected by a security service.

This magnificent historic residence will provide you with a sense of maximum luxury and privacy right in the capital. It is located within close reach of the Divoká Šárka nature reserve and Džbán natural swimming pool. A few minutes' walk from tram, bus, train, and metro A Nádraží Veleslavín stations. Full amenities are close at hand. A residential area full of greenery with quick connections to the city center, the airport, and international schools. For recreational activities, sports, or relaxation in nature, there is plenty of greenery, cycle paths, or nearby sports venues.

Fees are paid separately, a deposit of 2 monthly rents. Real estate commission is one rent + VAT. Energy performance certificate is not available, hence listed as class G.

Only for long-term rent.
Offer ID955451
Last updated26.03.2026
Price240 000 CZK / month
Price for discussionNo
Price comment+ utilities CZK 40.000 incl. gas, electricity will be transfered on tenant, deposit 2 rents
Size5 rooms and more
House typeWith floors
ConditionVery good condition
Construction typeBrick
OwnershipPersonal
FurnishedYes
Number of floors4
Underground floors1
Usable area827m2
Floor area827m2
Land area8770m2
Move-in date08.05.2025
GarageYes
ParkingNo
CellarYes
BalconyYes
TerraceYes
LoggiaNo
ElevatorNo
PoolNo
Water sourceRemote source
HeatingCentral gas
GasEnergy company
Electricity230V
TelecomInternet
Waste managementPublic sewage
Year of construction1902
Number of parking spaces6
Garrets (attic spaces)No
TransportBus, Public transport, Road, Train
Low-energyNo
Energy RatingG - Exceptionally uneconomical
DecreeNo. 78/2013 Coll.
Send me an offer for a low-rate mortgage
Petr Karásek

Petr Karásek

Reveal phone number

Happy House Rentals

Uruguayská 78/12, Praha 2, 12000

view all agency properties