Retail space for rent, 94m2

Velké náměstí, Hradec Králové

29 990 CZK / month
Make Enquiry
Dovolujeme si vám v exkluzivním zastoupení majitele nabídnout komerční prostor umístěný v měšťanském domě na Velkém náměstí 40 v samotném centru Hradce Králové.

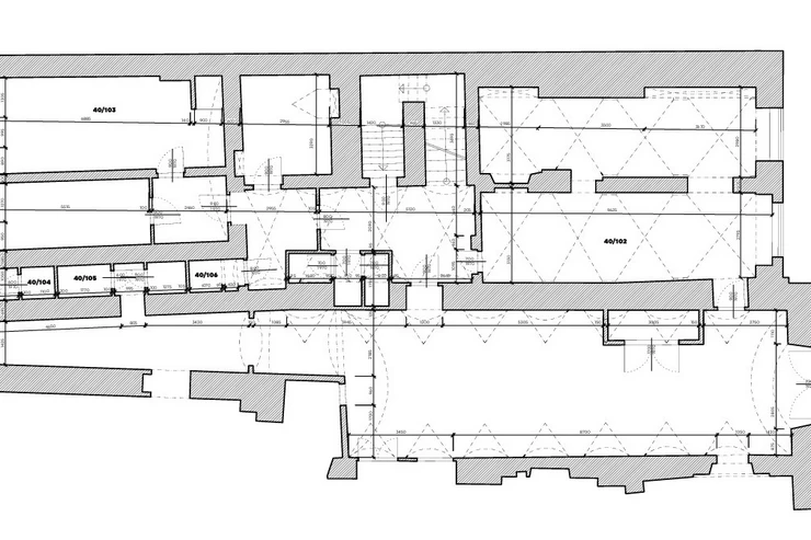
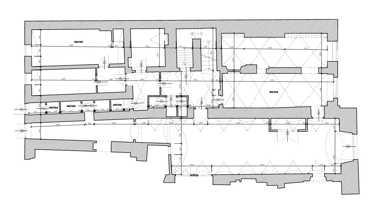
Prostor o celkové ploše 94 m² zahrnuje sál pro hosty o velikosti 57 m², a 3 další místnosti, které lze využit jako technické nebo pro personál.

Bez odstupného!

Prostor zabírá celé přízemí domu. Nabízí se přímý vstup z Velkého náměstí a ze společné chodby domu. Vlastník taky nabízí zvlášť velkou zahrádku s barem ve vnitrobloku, která se také muže stát předmětem pronájmu. Za zahrádkou se nachází ještě tři rozlehlé terasy a lze na nich pořádat různé společenské akce. Zahrádku lze zastřešit a využívat celoročně.

Provoz je umístěn v objektu středověkého původu, který prošel řadou mladších přestaveb, z nichž nejvýznamnější je klasicistní. Proto zde naleznete impozantní vstupní chodbu s klenutými originálními stropy a sklepní klenuté stropy jsou také impozantní.

Domy s restaurací se nachází vedle Katedrály Sv. Ducha z r. 1307. Dům je již od r. 1958 zapsán v Památkovém katalogu Národního Památkového ústavu jako Kulturní památka ČR.

V současné době je objekt vytápěn jednotlivými plynovými kotli, ale vlastník je v procesu instalace energeticky úsporných tepelných čerpadel. Nad restaurací se nachází byty, proto má vlastník má zájem pronajmout konceptu restaurace, která není nadstandardně hlučná, a jejíž provozovatel má prokazatelné zkušenostmi v oboru pohostinství.

Pokud Vás zaujala možnost jednat o pronájmu tohoto objektu, kontaktujte nás. Poskytneme všechny podklady a zajistíme prohlídku.
Offer IDN495
Last updated21.04.2026
Price29 990 CZK / month
Price for discussionNo
House typeWith floors
ConditionGood condition
Construction typeBrick
Usable area94m2
Office area94m2
Move-in date01.05.2026
GarageNo
ParkingNo
Energy RatingF - Very uneconomical
Send me an offer for a low-rate mortgage
Call Centrum CAPITAL Trust, a.s

Call Centrum CAPITAL Trust, a.s

Reveal phone number

Capital Trust a.s.

Křižíkova 679/65a, Praha 8, 18600

view all agency properties