Restaurant for rent, 280m2

Spytihněvova, Praha 2 - Nusle

70 000 CZK / month
Make Enquiry
SPYTIHNĚVOVA 12, Prague 2, Nusle.

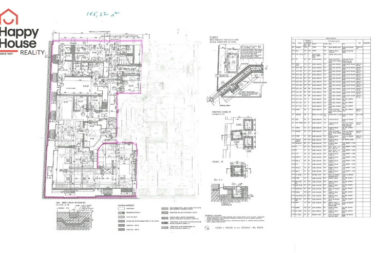
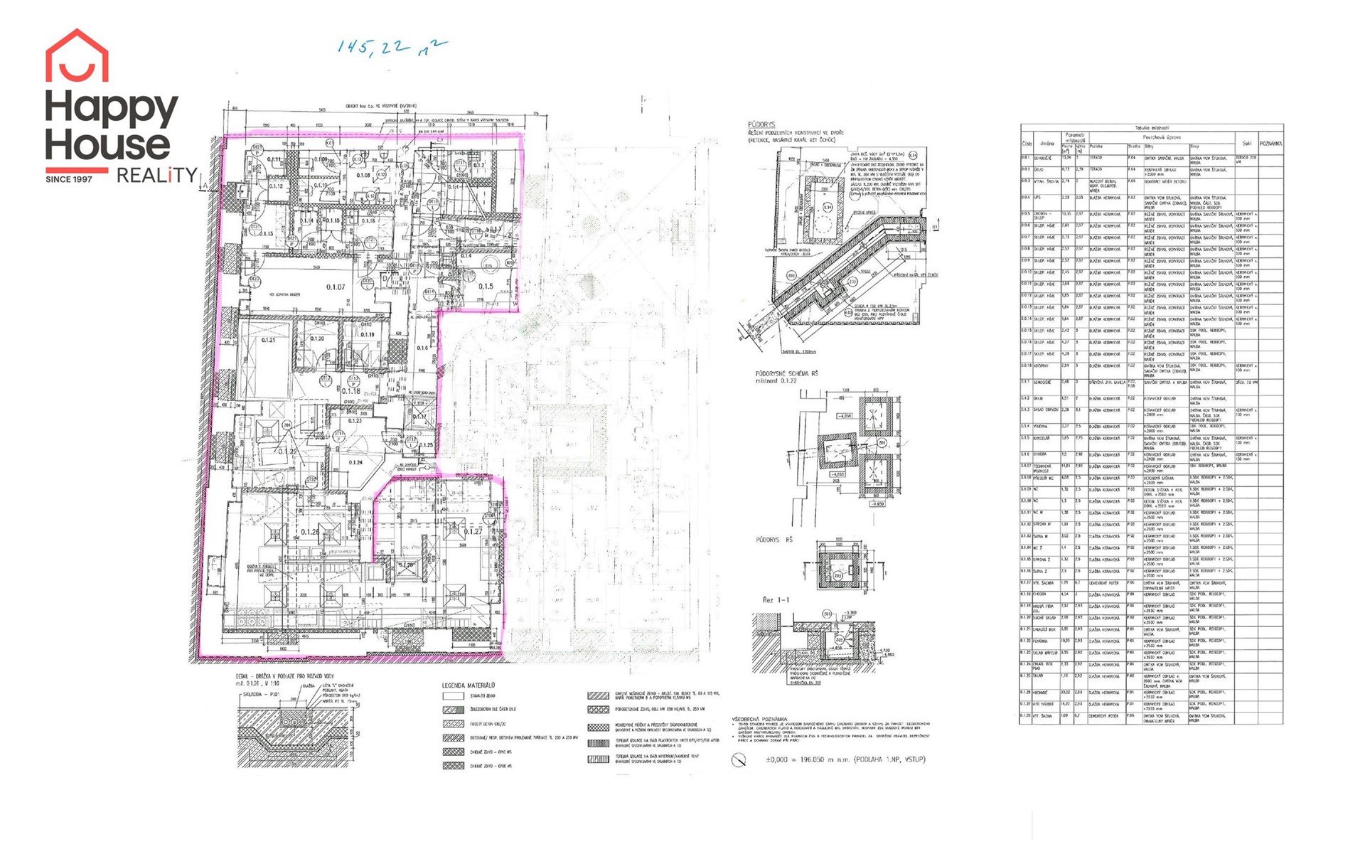
We offer for rent a duplex, newly renovated, restaurant space of approximately 280 sqm with street-facing windows and direct street entry, located in a corner brick building with 4 floors, in Prague 2 Nusle.
On the 1st floor, there will be a kitchen and facilities for operations and staff, and on the ground floor, a restaurant with a bar, guest amenities, and direct street access, see the floor plans.

The space will be under reconstruction from around August or September 2026. The renovation will be completed in approximately 18 months to 2 years.
Depending on the client's requirements and the signing of the lease agreement, the space can be customized to their needs.
Offer ID977060
Last updated13.04.2026
Price70 000 CZK / month
Price for discussionNo
Price comment+ utilities and services, deposit 3 rents
House typeWith floors
ConditionVery good condition
Construction typeBrick
OwnershipPersonal
FurnishedNo
Floor1
Number of floors5
Usable area280m2
Move-in date01.03.2028
GarageNo
ParkingNo
CellarNo
BalconyNo
TerraceNo
LoggiaNo
Water sourceRemote source
HeatingCentral gas
GasEnergy company
Electricity230V
TelecomInternet
Waste managementPublic sewage
Garrets (attic spaces)No
TransportPublic transport, Road
Low-energyNo
Energy RatingG - Exceptionally uneconomical
DecreeNo. 78/2013 Coll.
Send me an offer for a low-rate mortgage
Petra Štěpánková, DiS.

Petra Štěpánková, DiS.

Reveal phone number

Happy House Rentals

Uruguayská 78/12, Praha 2, 12000

view all agency properties