Office for rent, 60m2

Praha 6 - Řepy

20 000 CZK / month
Make Enquiry
Rent a commercial space on Karlovarská Street!

The space is located on a busy road, so your advertisement will be seen by
thousands of passing cars every day. There is a bus stop and trams 22 and 25
within walking distance, which ensures convenient access for clients and
employees.

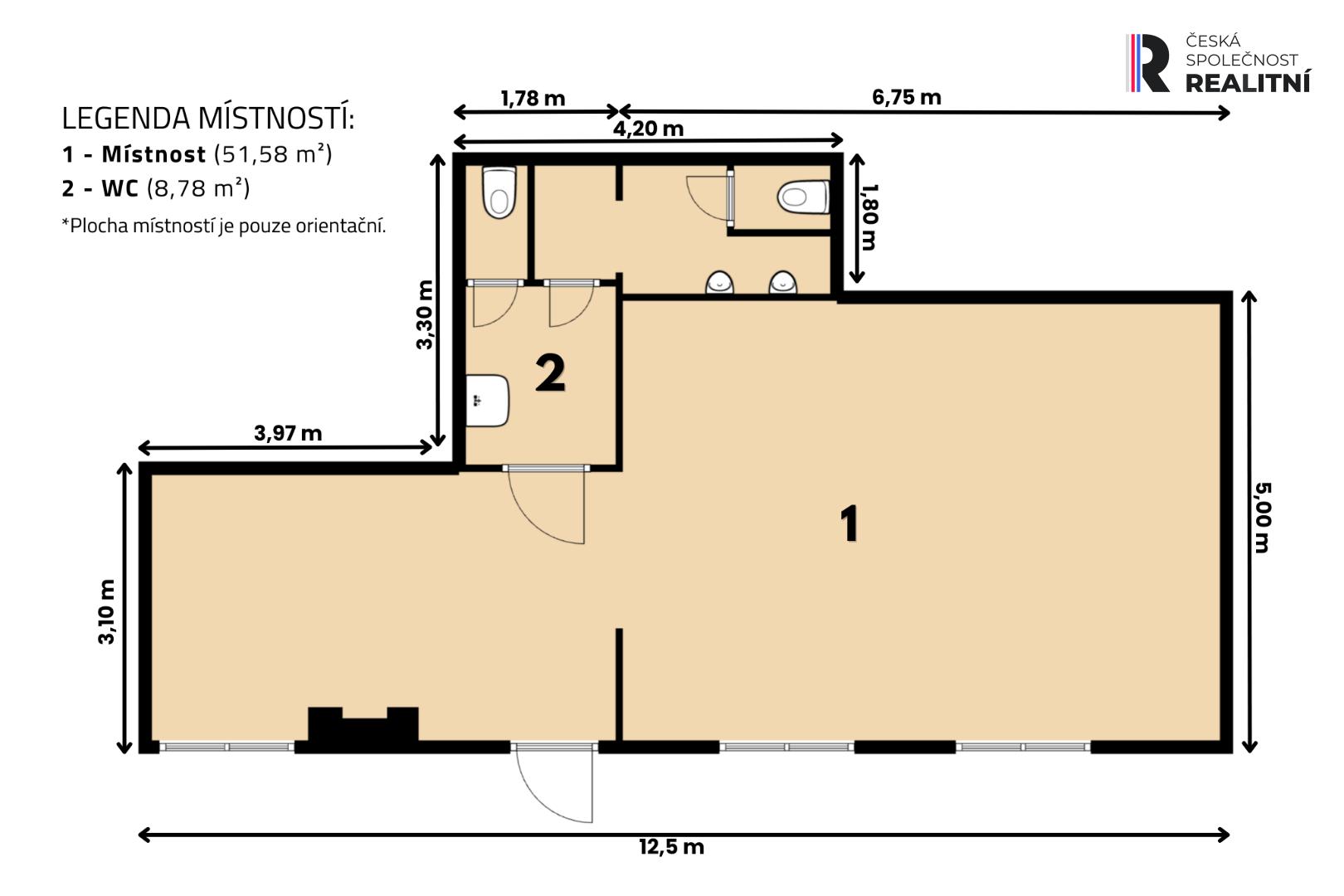
About the space

- available from 1.6.2026

- the space will be empty, ready for your own arrangement

- two toilets are included

- gas heating (vafky + radiator)

- possibility of parking clients directly at the building

- we prefer a quiet type of activity

Costs

- Rent: 20.000 CZK / month

- Fees: 2500 CZK / month (water, gas, waste)

- Electricity is transferred to the tenant

- More info with the broker 730 701 701
Offer IDN90783
Last updated20.03.2026
Price20 000 CZK / month
House typeGround level
ConditionGood condition
Construction typeBrick
OwnershipPersonal
Number of floors1
Usable area60m2
Floor area60m2
Move-in date01.06.2026
GarageNo
ParkingYes
Water sourceRemote source
HeatingCentral gas
GasEnergy company
Electricity230V
TelecomCable TV
Waste managementPublic sewage
Number of parking spaces1
TransportBus, Public transport, Road, Highway
Road typeAsphalt
Energy RatingG - Exceptionally uneconomical
Send me an offer for a low-rate mortgage
Ing. Edita Navrátilová

Ing. Edita Navrátilová

Reveal phone number

Česká Společnost Realitní/Prodej a Správa Nemovitostí s.r.o.

Štefánikova 13/43, Praha 5, 15000

view all agency properties