Apartment for rent, 2+kk - 1 bedroom, 61m2

Rostislavovo náměstí, Brno - Královo Pole

30 000 CZK / month
Make Enquiry
Rent a modern, fully furnished apartment in the Cyril Residence, located at Rostislavovo náměstí, Brno–Královo Pole.
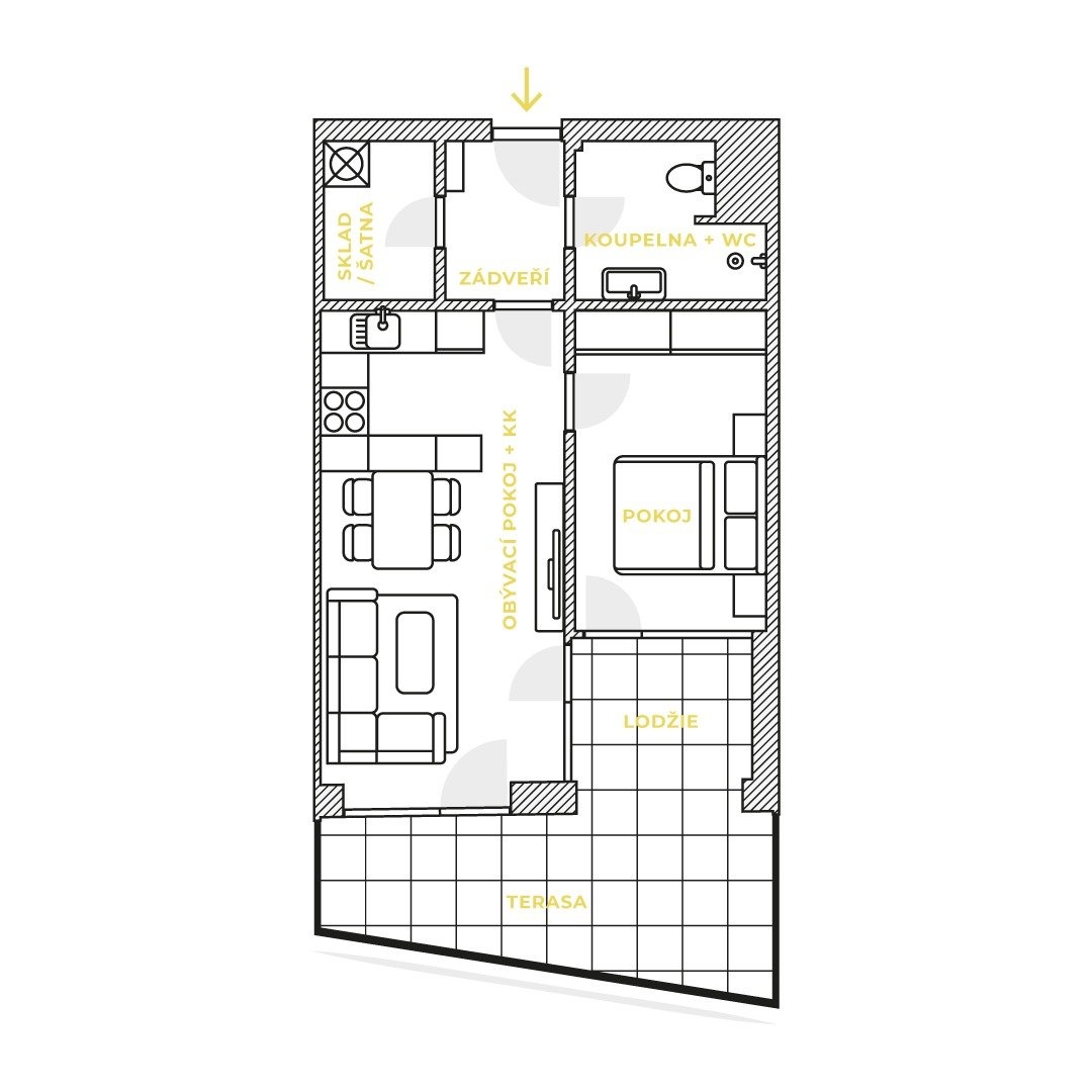
The apartment is situated on the 5 floor and offers a 2+kk layout with a total floor area of 61.38 m². The apartment is available for move-in now.

What makes Cyril Residence special?
Cyril Residence is a modern new-build development in the heart of Královo Pole. A high standard of living, low energy consumption, and a strong focus on well-being make it an ideal place for comfortable, quality living.

A key advantage of this rental is the flexibility and convenience it offers — zero hassle living. All apartments come fully furnished, so you can move in immediately without worrying about purchasing furniture or appliances. No HOA fees, no renovation costs, no maintenance responsibilities.

What sets our apartments apart?
• Custom-made kitchens crafted by Czech carpenters, stylish furniture, premium appliances, aluminium triple-glazed windows, smart home system, and high-speed internet
• All units equipped with mechanical ventilation with heat recovery (rekuperace) for constant fresh air
• External blinds or blackout curtains for maximum comfort and uninterrupted sleep
• Heating and cooling via ceiling radiant system powered by heat pumps
• Balcony or loggia with every apartment
• Parking stacker rental option

Additional benefits
The building features a green rooftop, an elevator, bicycle storage with charging options, and an automated parcel delivery system (Blocks) — all included in the rent. Management is handled directly by the developer, ensuring quick response to tenant needs and a high level of comfort, including excellent acoustic performance in all units.

Rental terms
Monthly rent: 32 000 Kč + 4 000 Kč utilities
Upon signing the lease, a refundable deposit equal to two months' rent and a one-time administrative fee of 10 000 Kč are required.

Who are you renting from?
Urbaneo is a residential developer focused on creating high-quality rental living in prime locations, with an emphasis on comfort, well-being, and thoughtful design. All apartments are fully furnished and located either in modern new developments or carefully renovated historical buildings, always meeting the highest standards of contemporary living.

Questions?
Feel free to contact us, we’ll be happy to assist you.
Learn more about the Urbaneo concept on our websites
Offer ID00551
Last updated17.04.2026
Price30 000 CZK / month
Price for discussionNo
ConditionNew construction
Construction typeMixed
OwnershipPersonal
Floor5
Usable area61m2
Balcony area5m2
GarageNo
ParkingYes
CellarNo
BalconyYes
TerraceNo
LoggiaNo
PoolNo
Garrets (attic spaces)No
Low-energyNo
Energy RatingA - Exceptionally economical
DecreeNo. 78/2013 Coll.
Energy Performance Certificatedownload
Send me an offer for a low-rate mortgage
Vladimíra Ježíková

Vladimíra Ježíková

Reveal phone number

Urbaneo

Londýnské náměstí 881/6, Brno, 63900

view all agency properties