Apartment for rent, 3+1 - 2 bedrooms, 68m2

Malovarská, Velvary

17 000 CZK / month
Make Enquiry
Available immediately.

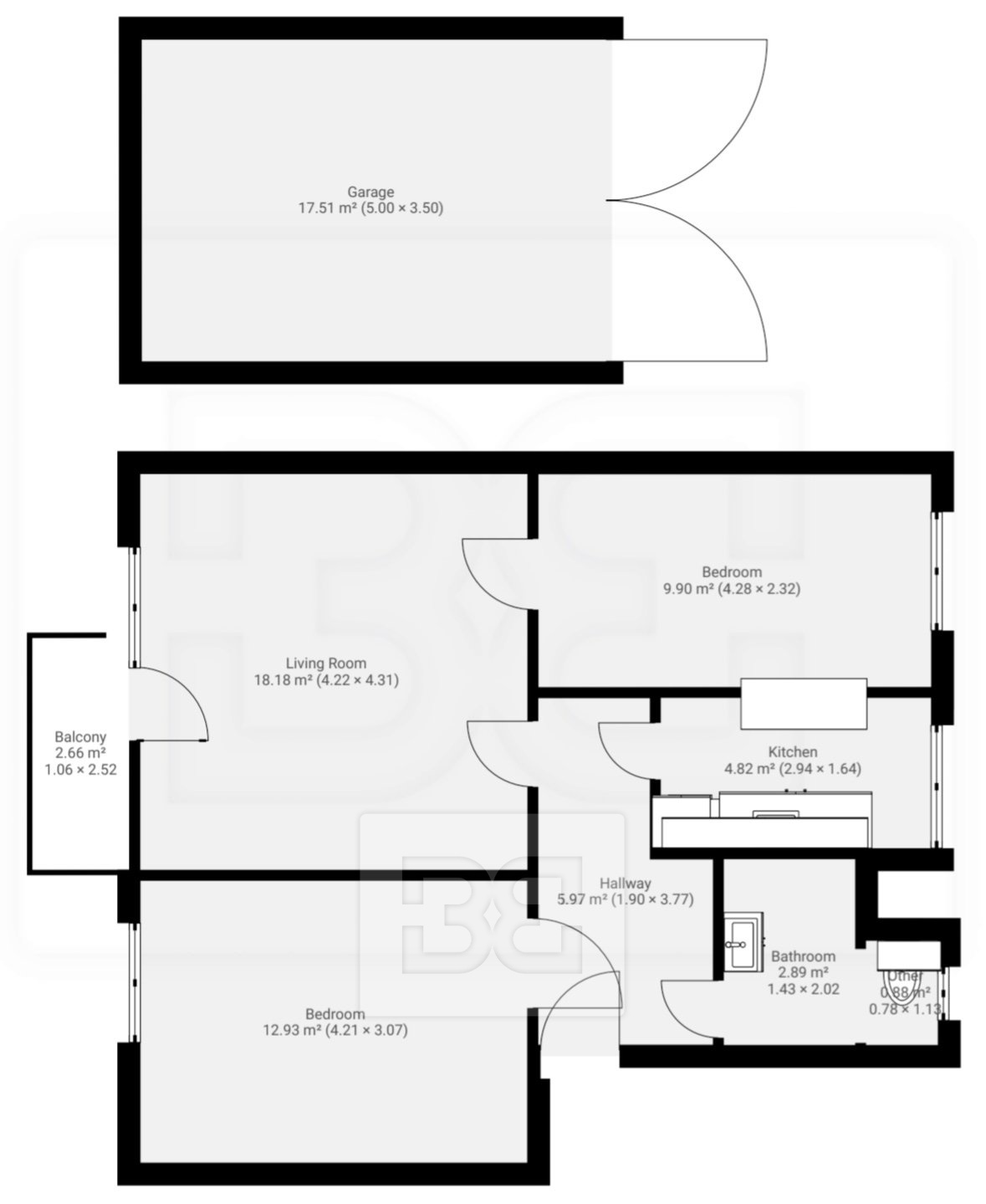
We are offering for rent a spacious 3-bedroom apartment with a total area of 68 m², located on the 2nd floor of a well-maintained apartment building at Malovarská 537 in Velvary. Its layout makes it ideal for family living.

The entryway leads to a separate first bedroom, a bathroom with a tub and toilet, the kitchen, and a spacious living room with access to a balcony. The living room leads to the second bedroom. Please refer to the floor plan in the photo gallery.

The apartment is in good overall condition and is being sold unfurnished. Heating is provided by radiators in the living room. The bedrooms have electric heaters.

The apartment includes a spacious garage located right next to the apartment building. The garage has electricity and is well-lit.

Thanks to its location on the outskirts of the city, it is completely quiet here. The city center and all amenities, restaurants, cafes, and excellent public transportation—buses are within walking distance—are a 10-minute walk away. The train station is about a 15-minute walk.

Rent: 17,000 CZK
Utility deposits: 1,500 CZK + electricity and gas are transferred to the tenant’s name
Commission: 18,500 CZK + VAT
Refundable security deposit

A major advantage for potential tenants is that the apartment is professionally managed by Bohemian Estates, which handles property management on behalf of the owner. Tenants have access to a contact person who handles all matters related to the lease (maintenance, rent payments, billing, amendments, etc.). This ensures tenants a hassle-free living experience with full service.
Offer IDN09052
Last updated03.04.2026
Price17 000 CZK / month
Price for discussionNo
Price comment+ Advance payments for utilities: 1,500 CZK + Electricity and gas bills are transferred to the tenant. Refundable security deposit, Commission: 18,500 CZK + VAT
Heating costs+ zálohy za služby 1.500,- + elektřina a plyn se převádí na nájemníka. Vratná jistota, Provize 18.500,- + DPH
ConditionGood condition
Construction typeBrick
OwnershipPersonal
FurnishedNo
Floor2
Usable area68m2
Balcony area5m2
Cellar area1m2
Move-in date01.05.2026
GarageYes
ParkingNo
CellarYes
BalconyYes
TerraceNo
LoggiaNo
ElevatorNo
PoolNo
Water sourceRemote source
HeatingLocal electric, Local gas
GasEnergy company
Electricity230V
TelecomInternet
Building typePart of block
Building surroundingsResidential
Number of garages1
Garrets (attic spaces)No
TransportBus, Public transport, Road, Highway, Train
Road typePaved
Low-energyNo
Energy RatingG - Exceptionally uneconomical
Send me an offer for a low-rate mortgage
Josef Vojtíšek

Josef Vojtíšek

Reveal phone number

Bohemian Estates

V háji 1092/15, Praha 7, 17000

view all agency properties