Apartment for rent, 2+kk - 1 bedroom, 48m2

Krásova, Praha 3 - Žižkov

24 300 CZK / month
Make Enquiry
We offer for rent an elegant one-bedroom apartment with an area of 47.6 sqm on the 2nd floor of a brick building with an elevator in the center of Prague, close to the Main Railway Station in Prague 3 in Žižkov.
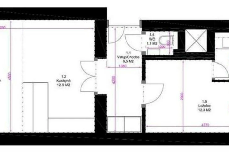
The apartment is fully equipped including dishes, an iron, a clothes dryer, and a vacuum cleaner. It features an entrance hall (6.5 sqm), living room (11.4 sqm) with a kitchenette (12.9 sqm), bedroom (12.3 sqm), bathroom (3.4 sqm - accessible from the bedroom), and a separate toilet (1.1 sqm - accessible from the hallway). The kitchenette is equipped with a microwave, a dining counter, chairs, and a fitted kitchen unit with appliances - a fridge with a freezer, ceramic hob, electric oven, and dishwasher. In the living area, there is a fold-out sofa, armchairs, a writing desk, and a shelving unit. The bathroom contains a shower cubicle and washing machine. The bedroom has a double bed, a chest of drawers, and a coat rack. The hallway includes a spacious built-in wardrobe. The rooms are separate and feature beautiful wooden floors, elsewhere there are tiles. Heating is provided by electric direct heaters, and hot water is supplied by a boiler. Internet connection available. Street parking - zones.

Great location - the center of Prague is 10 minutes from the house. Surrounded by parks, full amenities, shops, services, restaurants, cafes, and various cultural facilities. Tram stop right at the house, Metro C Main Station 5 minutes by foot.

Utility fees are paid separately, and electricity payments are made directly to suppliers. Refundable security deposit equals one month's rent. Real estate agent commission is 1 rent + VAT. The PENB certificate is not available, therefore class G is listed.

This property is managed by our real estate agency = above-standard care for the apartment and for you as a tenant.
Offer ID974462
Last updated03.03.2026
Price24 300 CZK / month
Price for discussionNo
Price comment+ utilities CZK 1.500+ el, deposit 30 000 Kč
ConditionVery good condition
Construction typeBrick
OwnershipPersonal
FurnishedYes
Floor3
Number of floors6
Underground floors1
Usable area48m2
Floor area48m2
Move-in date02.03.2026
GarageNo
ParkingNo
CellarNo
BalconyNo
TerraceNo
LoggiaNo
ElevatorYes
Water sourceRemote source
HeatingLocal electric
Electricity230V
TelecomInternet, Telephone
Waste managementPublic sewage
Garrets (attic spaces)No
TransportPublic transport, Road
Low-energyNo
Energy RatingC - Economical
DecreeNo. 78/2013 Coll.
Send me an offer for a low-rate mortgage
Petra Štěpánková, DiS.

Petra Štěpánková, DiS.

Reveal phone number

Happy House Rentals

Uruguayská 78/12, Praha 2, 12000

view all agency properties