Apartment for rent, 3+1 - 2 bedrooms, 83m2

Zárubova, Praha 4 - Kamýk

28 900 CZK / month
Make Enquiry
Listing ID / Property Reference: D2008

We offer for rent a furnished, sunny 3+1 apartment with a floor area of 83 m², fully renovated and located on the 7th floor out of 8 of a well-maintained panel building with an elevator.
Its position on one of the top floors gives the apartment a special character – it offers peace, privacy, and panoramic views of the Lhotek Forest (Lhotecký les) as well as stunning sunsets.

The apartment is ideal for a single tenant, a couple, or a small family who value high-quality and comfortable living, plenty of storage space, generous rooms and modern design.
The quiet, green surroundings combined with full civic amenities nearby create a truly pleasant place to live.

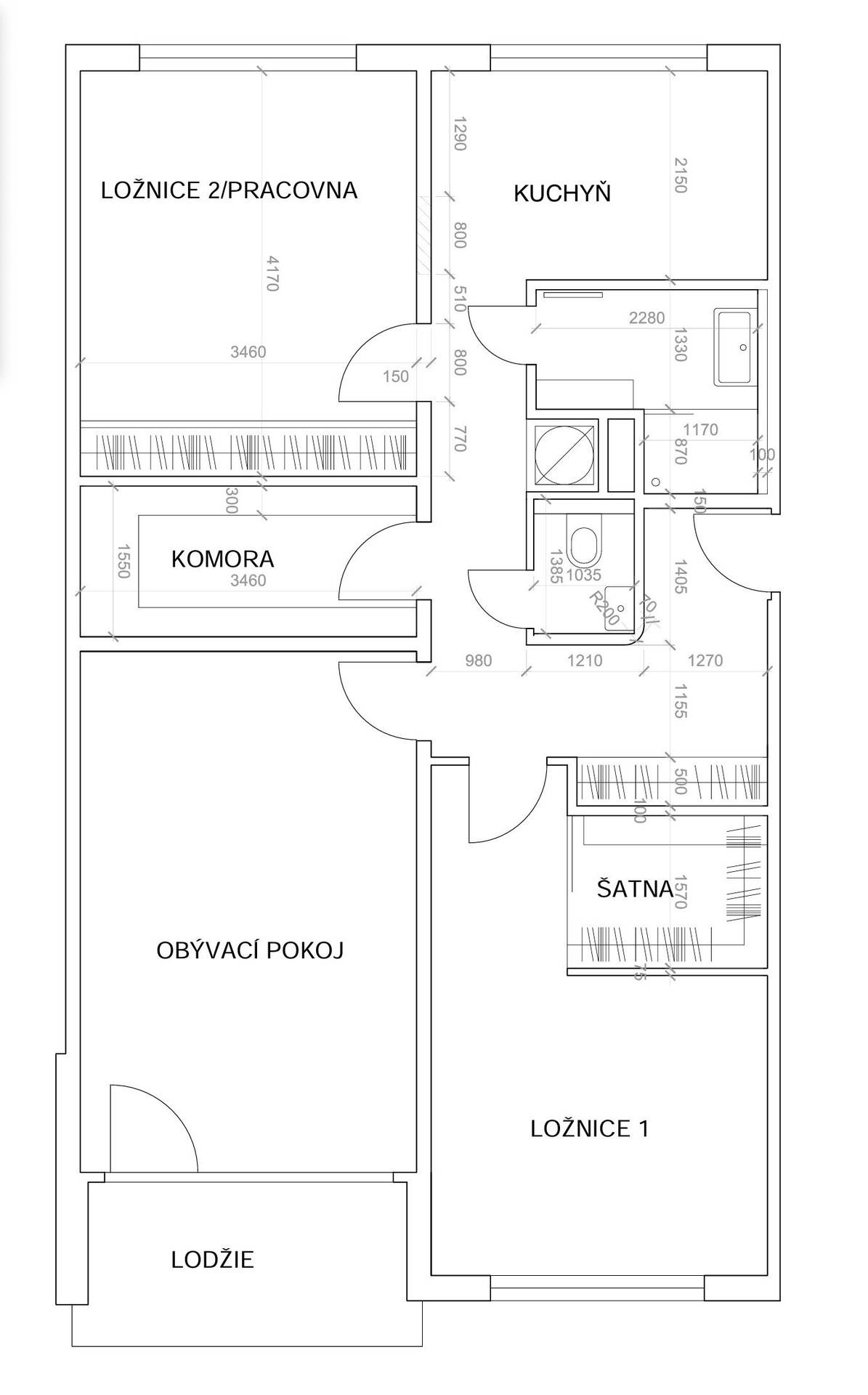
The layout includes a living room with a west-facing loggia, perfect for evening relaxation; a new sofa with an electric pull-out mechanism, suitable also for occasional sleeping; a master bedroom with a private walk-in wardrobe; and a second bedroom or home office facing northeast, ideal for working from home.
There is also a separate fully equipped kitchen (lacquered kitchen units and built-in Whirlpool appliances including dishwasher), a spacious bathroom, a separate toilet, a very large storage room, and extensive storage space including built-in wardrobes and a walk-in closet.

The apartment stands out thanks to its high-quality workmanship and premium materials — Sapeli soundproof doors, Villeroy & Boch sanitary ware, air conditioning, underfloor heating in the bathroom, a climate unit, and radiators with remote control via a mobile app.
Internet is provided by Vodafone with speeds of 1,000 Mbit/s (up to 2,000 Mbit/s available) via optical fibre.

A major advantage is the quiet, green environment together with the possibility of parking.
The building has been renovated, and common areas are monitored by a 24/7 CCTV system. A secure stroller and bicycle room is available in the basement.

The location offers excellent accessibility both by car and public transport, with several bus lines nearby. Within 15 minutes, you can reach the Kačerov metro station (red line C).

Another great advantage is the complete range of civic amenities in the immediate vicinity. There are two playgrounds and a pharmacy right behind the building, and Modřanská rokle Nature Park, ideal for walks, sports, and relaxation in green surroundings, is within walking distance. There is also a kindergarten, elementary school, Kaufland supermarket, and the popular OC Novodvorská Plaza shopping center nearby, which offers a wide range of shops and services.

The apartment is available for immediate move-in.

Monthly rent: 28.900 CZK + utilities
Electricity is transferred to the tenant.

Energy performance class (PENB): C — economical.

For more information or to arrange a viewing, please contact the real estate agent.
Offer IDD2008
Last updated12.02.2026
Price28 900 CZK / month
Price for discussionNo
ConditionVery good condition
Construction typeConcrete
OwnershipPersonal
FurnishedYes
Floor7
Number of floors8
Usable area83m2
Move-in date15.12.2025
GarageNo
ParkingYes
CellarNo
BalconyNo
TerraceNo
LoggiaYes
ElevatorYes
PoolNo
HeatingOther, Central remote
TelecomCable, Cable TV, Internet
Waste managementPublic sewage
Barrier-free accessYes
Building surroundingsResidential
Garrets (attic spaces)No
TransportBus, Public transport, Road
Road typeAsphalt
Low-energyNo
Energy RatingC - Economical
DecreeNo. 78/2013 Coll.
Send me an offer for a low-rate mortgage
Makers Reality

Makers Reality

Reveal phone number

Makers Reality

Vinohradská 2133/138, Praha 3, 13000

view all agency properties