Apartment for rent, 2+kk - 1 bedroom, 50m2

Vlnitá, Praha 4 - Braník

19 000 CZK / month
Make Enquiry
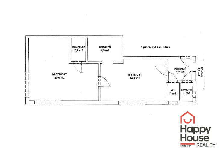
We exclusively offer to rent a spacious one-bedroom apartment on the 1st floor of a three-story brick residential villa in Prague 4 Braník. The apartment is unfurnished and features an entrance hall (3.7 sqm) with access to a balcony (1.2 sqm), a storage room (1 sqm), a toilet (1 sqm), and a living room (14.1 sqm) with a separate kitchenette (4.9 sqm) and entrance to the bedroom (20.6 sqm) with access to the bathroom (4.9 sqm). It is a corner apartment, the bedroom is separate and has windows on two walls. The kitchen includes kitchen unit, a gas stove with an electric oven, an extractor hood, and preparation for a refrigerator and washing machine. The bathroom features a massage shower, a sink, and a heated towel rail. The rooms have parquet floors, while other areas are tiled. Heating is provided by a gas boiler located in the kitchen. The balcony faces northwest towards the street, the living room overlooks the garden to the northeast, and the bedroom has garden views to both the northeast and southeast. Street parking is available in designated zones.

Enjoy comfortable living in the original Branik villa district, full of greenery in a quiet street. Nearby is Branik Forest Park, which leads to Vávrova lookout and Branik Rock or Park Za Mlýnem in the Kunratice Stream valley with many sports facilities and the Zelený Pruh swimming pool. All civic amenities are nearby. The bus station is about a 5-minute walk from the house and then a 7-minute drive to Budějovická metro station, where there is a clinic and DBK Shopping Center with many shops, services, and restaurants.

Utility fees are paid separately, the security deposit is one month's rent. Real estate agency commission is one month's rent plus VAT. The energy performance certificate is not available, therefore it is listed as class G.
Offer ID969353
Last updated05.02.2026
Price19 000 CZK / month
Price for discussionNo
Price comment+ utilities CZK 700/pers + energies, deposit 2 rents
ConditionVery good condition
Construction typeBrick
OwnershipPersonal
FurnishedNo
Floor2
Number of floors4
Usable area50m2
Floor area50m2
Balcony area1m2
Move-in date28.01.2026
GarageNo
ParkingNo
CellarNo
BalconyYes
TerraceNo
LoggiaNo
ElevatorNo
Water sourceRemote source
HeatingCentral gas
GasEnergy company
Electricity230V
TelecomInternet
Waste managementPublic sewage
Garrets (attic spaces)No
TransportPublic transport, Road
Low-energyNo
Energy RatingG - Exceptionally uneconomical
DecreeNo. 78/2013 Coll.
Send me an offer for a low-rate mortgage
Romana Thelenová

Romana Thelenová

Reveal phone number

Happy House Rentals

Uruguayská 78/12, Praha 2, 12000

view all agency properties