Apartment for rent, Atypical layout, 139m2

Na dlouhém lánu, Praha 6 - Vokovice

38 000 CZK / month, excluding agency fees
Make Enquiry
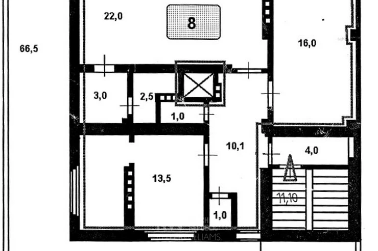
A very beautiful, atypical apartment with a total area of 139 m2 (apartment area 73 m2, terrace and winter garden area 66 m2) after complete renovation with a unique view from the south terrace of the countryside and hills on the horizon, and in all other directions. The apartment is located on the 4th floor of a classic apartment building typical for this part of Prague 6. The apartment is ready to move in immediately.

Monthly rent CZK 38,000
Housing costs only CZK 3,500 plus electricity will be transferred to the applicant
The refundable deposit is one month's rent
The real estate agency fee is one month's rent plus VAT

- The apartment has undergone a complete and very tasteful renovation
- An incredibly sunny 22 m² living room with access to a south-facing terrace
- A 66 m² terrace extends around the entire perimeter of the apartment
- The glazed winter terrace is perfect for relaxing, growing plants
- Bright bedroom (16 m2) also with access to the terrace
- Large dining room next to the practical new kitchen
- Hallway leading to all rooms and the winter garden with seating area
- Separate bathroom with a laundry room
- Separate toilet and another storage room
- The rooms have classic renovated parquet floors
- Parking in the blue zone of Prague 6
- Small cellar on the ground floor
- Bořislavka shopping center 2 minutes' walk from the house
- Just behind the house is the Hvězda Winter Stadium
- Bořislavka metro station 2 min.
- Convenient access to the Airport
- The house is a short walk from the Cordeus Polyclinic – pool, massages, yoga, doctors' offices, pharmacy
- Friendly atmosphere in the building and a classy place to live in an attractive part of Prague 6

The apartment is heated by central heating, an electric ladder can be used in the bathroom for added comfort, and hot water is provided by a boiler. The kitchen has a microwave, ceramic hob, and oven. Upon agreement with the owner, additional appliances such as a refrigerator, washer/dryer, etc. can be purchased. The apartment is suitable for two people, or more by agreement.

If you are interested in this offer, please call us to arrange a viewing.
The rooms in the gallery are furnished with home staging to give a better idea of the space.

All published information contained in this advertisement is for informational purposes only and does not constitute an offer within the meaning of Section 1731 or Section 1732 of the Civil Code, nor does it constitute a public promise pursuant to Section 1733 of the Civil Code. This offer does not entitle anyone to conclude a contract. Keller Williams Czech Republic mediates data (information) acquired in good faith from the owner of the immovable property and therefore assumes no liability for its completeness, correctness and accuracy. At the same time, it is not authorized to conclude any contracts related to the sale of the property on behalf of the owner of the immovable property.
Offer ID28819
Last updated03.12.2025
Price38 000 CZK / month, excluding agency fees
Price for discussionNo
Agency feeExcluding agency fees
ConditionVery good condition
Construction typeBrick
OwnershipPersonal
FurnishedPartially
Floor4
Number of floors4
Underground floors1
Usable area139m2
Garden area200m2
Terrace area66m2
Move-in date01.12.2025
GarageNo
ParkingNo
CellarYes
BalconyNo
TerraceYes
LoggiaNo
ElevatorNo
PoolNo
HeatingCentral remote, Local electric
Building typePart of block
Building surroundingsResidential
Garrets (attic spaces)No
TransportBus, Public transport, Road, Highway, Train
Road typeAsphalt
Low-energyNo
Energy RatingG - Exceptionally uneconomical
Send me an offer for a low-rate mortgage
Ing. Lucie Adamcová

Ing. Lucie Adamcová

Reveal phone number

Keller Williams Czech Republic

Kaprova 52/6, Praha 1, 11000

view all agency properties