Apartment for rent, 3+1 - 2 bedrooms, 106m2

U vody, Praha 7 - Holešovice

36 500 CZK / month
Make Enquiry
Available immediately.

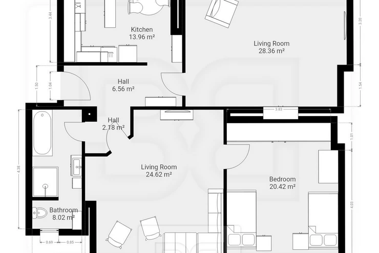
We offer for rent a practically designed, furnished 3+1 apartment with an area of 106m², located in a carefully maintained apartment building with an elevator. The apartment includes a spacious basement storage unit.

Layout of the apartment:
• Entrance hall with wardrobe
• Kitchen with dishwasher, refrigerator, electric oven, extractor hood, microwave oven, gas hob
• Spacious bedroom with built-in wardrobe and beautiful stove
• Bathroom with sink, bathtub, shower, and toilet
• Living room furnished with a sofa set
• Bedroom with a huge built-in wardrobe


Location:
The apartment is located in a popular part of Holešovice, right by the river. The location combines complete peace and quiet in the apartment's surroundings with excellent transport accessibility and civic amenities.


The monthly rent is CZK 36,500. Service charges CZK 3,500 + electricity. Refundable deposit CZK 44,700. Agency commission CZK 25,000 + VAT.
Offer IDN08558
Last updated19.11.2025
Price36 500 CZK / month
Price for discussionNo
Price commentService charges CZK 3,500 + electricity. Refundable deposit CZK 44,700. Agency commission CZK 25,000 + VAT.
ConditionVery good condition
Construction typeBrick
OwnershipPersonal
FurnishedYes
Floor1
Number of floors6
Underground floors1
Usable area106m2
Cellar area5m2
Move-in date24.11.2025
GarageNo
ParkingNo
CellarYes
BalconyNo
TerraceNo
LoggiaNo
ElevatorYes
PoolNo
HeatingCentral gas
Garrets (attic spaces)No
TransportBus, Public transport, Road, Highway, Train
Low-energyNo
Energy RatingG - Exceptionally uneconomical
Send me an offer for a low-rate mortgage
Adam Kubeš

Adam Kubeš

Reveal phone number

Bohemian Estates

V háji 1092/15, Praha 7, 17000

view all agency properties