Apartment for rent, 3+kk - 2 bedrooms, 65m2

Kpt. Stránského, Praha 9 - Černý Most

25 000 CZK / month
Make Enquiry
Available for immediate move-in.
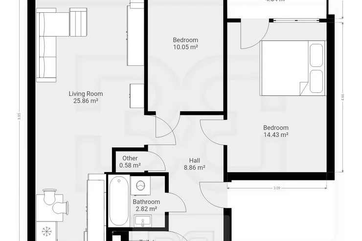
We are offering a spacious 2-bedroom apartment (3+kk) for rent, located on the 2nd floor of a well-maintained and insulated building at Kpt. Stránského 987/18. The rental also includes a cellar, providing additional practical storage space. The apartment feels bright and airy, has a functional layout, and offers comfortable living in a quiet location with excellent accessibility.

The main living area consists of a spacious living room. It is furnished with a comfortable corner sofa and offers enough space for both a living and dining area. The living room is connected to a separate kitchen. The kitchen is equipped with a cooktop, electric oven, microwave, extractor hood, sink, plenty of storage space, and a dining table. It feels clean, well-maintained, and ready for immediate use.

The apartment offers two separate bedrooms. The larger bedroom is furnished with a double bed and a spacious wardrobe with a large mirror. The smaller room is empty and ready to be arranged according to your needs — as a children’s room, home office, or second bedroom. Both rooms are bright and face a quiet part of the surrounding neighbourhood.

The bathroom is equipped with a bathtub, sink, and washing machine. The toilet is separate. The entrance hall is spacious and offers several built-in storage areas, providing plenty of room for coats, shoes, and other household items. The apartment also includes a glazed loggia, providing a pleasant space for sitting or drying laundry.

The neighbourhood offers full civic amenities — shops, schools, kindergartens, healthcare, greenery, and excellent public transport connections. The apartment is ideal for individuals, couples, or families looking for practical and affordable living in a peaceful part of Prague.

Monthly rent – 25,000 CZK
Service fees – 3,900 CZK + electricity
Security deposit – 29,000 CZK
Agency fee – 25,000 CZK + VAT

A major advantage for future tenants is that the apartment is professionally managed by Bohemian Estates, the property management company representing the owner. Tenants have access to a dedicated contact person who promptly handles all matters related to the tenancy (regular maintenance, emergency repairs by in-house technicians, billing, contract amendments, etc.). This ensures a smooth and worry-free rental experience with full service.
Offer IDN08545
Last updated17.11.2025
Price25 000 CZK / month
Price for discussionNo
ConditionVery good condition
Construction typeConcrete
OwnershipPersonal
FurnishedPartially
Floor2
Usable area65m2
Balcony area3m2
Move-in date01.12.2025
GarageNo
ParkingNo
CellarYes
BalconyYes
TerraceNo
LoggiaNo
ElevatorYes
PoolNo
Water sourceRemote source
HeatingCentral remote
Electricity400V
TelecomInternet
Barrier-free accessYes
Building typeDetached
Building surroundingsResidential
Garrets (attic spaces)No
TransportBus, Public transport, Road, Highway, Train
Low-energyNo
Energy RatingC - Economical
DecreeNo. 78/2013 Coll.
Send me an offer for a low-rate mortgage
Lukáš Kubát

Lukáš Kubát

Reveal phone number

Bohemian Estates

V háji 1092/15, Praha 7, 17000

view all agency properties