Apartment for rent, 3+kk - 2 bedrooms, 94m2

Na baště sv. Ludmily, Praha 6 - Hradčany

40 000 CZK / month
Make Enquiry
I would like to offer you a very attractive apartment for rent located in a great location in Prague 6 - Hradčany.

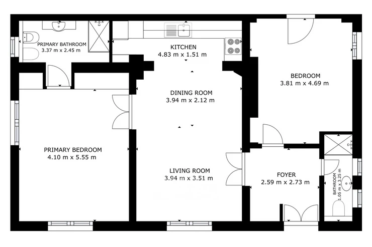
Are you looking for an apartment with character, peace and quiet, and an address that cannot be refused? This First Republic villa in Hradčany offers exactly that: the elegance of old Prague, privacy behind a high fence, and a feeling of home from the moment you step inside. A space that breathes - A generous 94 m²: the living room flows seamlessly into the dining room and fully equipped kitchen - ideal for evenings with friends or quiet mornings with coffee. Two separate bedrooms (one with built-in wardrobes) – privacy without compromise. Two bathrooms with showers – comfort for everyday use. Renovated oak parquet floors, high ceilings, timeless materials. Practical storage room/cellar approx. 10 m². New gas boiler – reliability and efficient heating.

The garden level (basement) has its own charm: exceptional peace and quiet, pleasant temperatures in summer, no noise from the street – perfect for work and relaxation.

The property is surrounded by a high fence, monitored by security cameras, and the apartment is equipped with an alarm system. It also includes a pleasant, well-kept garden, which invites you to relax or meet with friends or family for a barbecue. Another advantage is that there is only one apartment on each floor and you are guaranteed a parking space in the courtyard.

The location of the house is truly beautiful. The house is adjacent to several parks, in particular Charlotta Garrigue Masaryková Park, which is just a few steps away. The metro is a 5-minute walk away, and there are several prestigious schools and great cafes in the area.

Are you Interested? Feel free to request a viewing. I will be happy to show you the apartment and tell you why it is so special.
Offer ID28704
Last updated07.11.2025
Price40 000 CZK / month
Price for discussionNo
Price comment+ utilities (energies transferred to the tenant)
ConditionVery good condition
Construction typeBrick
OwnershipPersonal
FurnishedNo
Floor1
Number of floors4
Underground floors1
Usable area94m2
Cellar area10m2
Move-in date28.10.2025
GarageNo
ParkingNo
CellarYes
BalconyNo
TerraceNo
LoggiaNo
ElevatorNo
PoolNo
Water sourceRemote source
HeatingCentral gas
GasEnergy company
Electricity230V
TelecomCable, Internet, Telephone
Waste managementPublic sewage
Building typeCorner
Garrets (attic spaces)No
TransportPublic transport, Road
Road typeAsphalt
Low-energyNo
Energy RatingG - Exceptionally uneconomical
Send me an offer for a low-rate mortgage
Ing. Martin Hudek, MSc.

Ing. Martin Hudek, MSc.

Reveal phone number

Keller Williams Czech Republic

Kaprova 52/6, Praha 1, 11000

view all agency properties