Apartment for rent, 3+kk - 2 bedrooms, 69m2

Kmochova, Praha 5 - Smíchov

32 000 CZK / month, with agency fees, with legal services
Make Enquiry
We offer for rent a spacious apartment 3+kk in an attractive Prague district of Smichov.

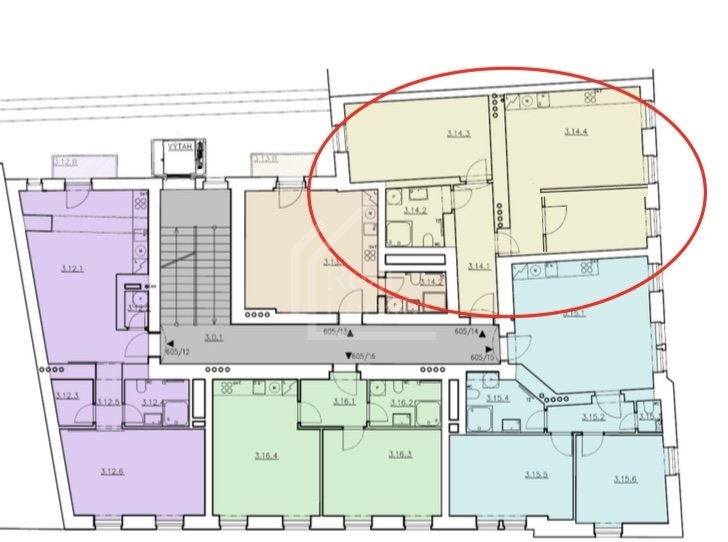
This bright apartment on the 3rd floor has a living room connected to the kitchen, 2 bedrooms and a modern bathroom with shower and toilet. An ideal choice for families and individuals looking for spacious and modern living in a quiet location with excellent transport links and full amenities.

Its advantage is its strategic location, ensuring a quiet life with excellent access to the city center. The Bertamka tram station is within easy reach and the Andel metro is just one tram stop away. The surrounding area offers the green spaces of Bertramka Park, Kinsky Garden and the Nový Smíchov shopping center, perfectly in tune with the tranquillity and modern lifestyle.
Utilities: CZK 2,500 per person.
A cellar is available.
For more information, please contact the real estate agent.
Offer ID01894
Last updated27.10.2025
Price for discussionYes
Agency feeWith agency fees
Legal servicesWith legal services
ConditionRenovated
Construction typeBrick
OwnershipPersonal
Floor3
Usable area69m2
Cellar area2m2
Move-in date23.10.2025
GarageNo
ParkingNo
CellarYes
BalconyNo
TerraceNo
LoggiaNo
ElevatorYes
PoolNo
Water sourceRemote source
Electricity230V
Waste managementPublic sewage
Garrets (attic spaces)No
TransportBus, Public transport, Road, Train
Low-energyNo
Energy RatingD - Less economical
DecreeNo. 78/2013 Coll.
Energy Performance Certificatedownload
Send me an offer for a low-rate mortgage
Jiří Fučikovský

Jiří Fučikovský

Reveal phone number

Reallocate

Lublaňská 667/42, Praha 2, 12000

view all agency properties