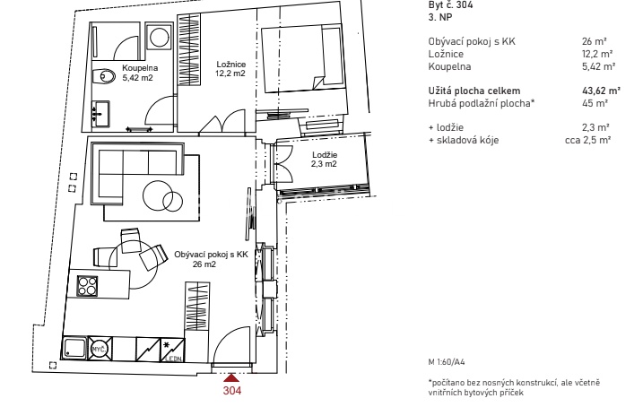
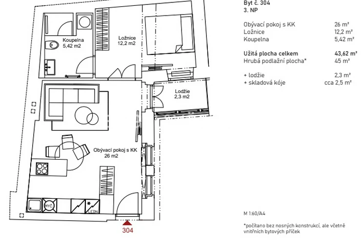
Apartment for rent, 2+kk - 1 bedroom, 44m2

Nosticova, Praha 1 - Malá Strana

35 000 CZK / month
Make Enquiry
Immediately for rent is ready apartment 2+kt on the fourth floor of the residence Nosticova. The apartment is a practical 2+kt with a combined living area and kitchen with a separate bedroom. Quality kitchen with all appliances, bathroom with shower. Residence Nosticova is after a complete and quality renovation. The house is in a quiet street in Mala Strana. The apartment can also be rented as an office. The interested party agrees with the real estate agency commission of one month's rent + VAT.
Offer ID136112-304
Last updated07.11.2025
Price35 000 CZK / month
Price for discussionNo
ConditionRenovated
Construction typeBrick
OwnershipPersonal
FurnishedPartially
Floor4
Usable area44m2
Move-in date04.07.2024
GarageNo
ParkingNo
CellarYes
BalconyNo
TerraceNo
LoggiaYes
ElevatorYes
PoolNo
Year of reconstruction2024
Garrets (attic spaces)No
Low-energyNo
Energy RatingG - Exceptionally uneconomical
Send me an offer for a low-rate mortgage
Mgr. David Culík

Mgr. David Culík

Reveal phone number

Engel & Völkers - Prague

Plzeňská 3351/19, Praha 5, 15000

view all agency properties